...

Projekty konstrukcji

Galeria wizualizacji

Zapraszamy do zapoznania się z galerią wizualizacji konstrukcji wykonanych przez nas.

Więcej informacji na temat konstrukcji znajdą Państwo tutaj a na temat wykonywanych przez nas projektów tutaj.

Jeżeli są Państwo zainteresowani lub mają jakiekolwiek pytania zachęcamy do kontaktu.

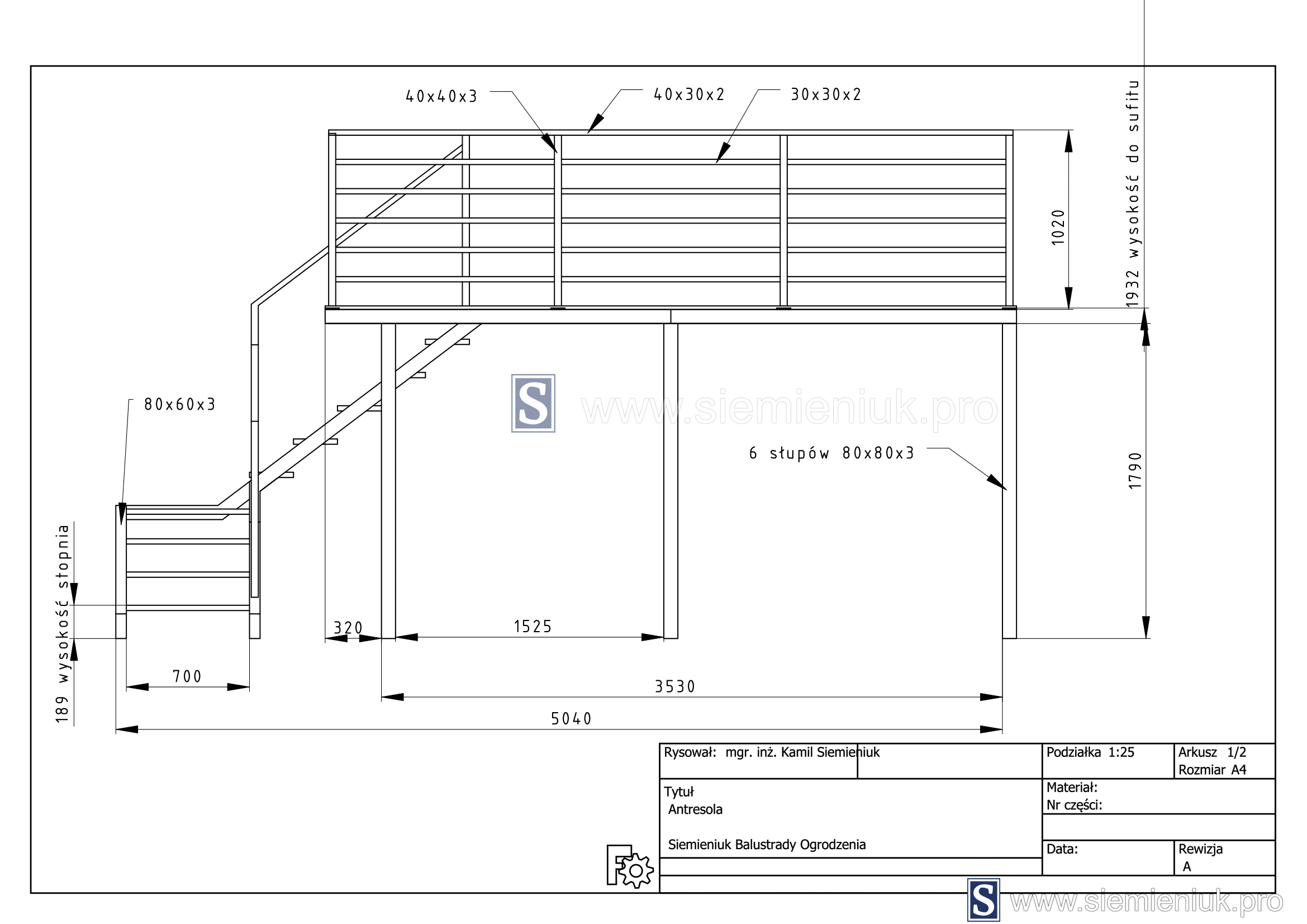
Antresola

Nasza firma realizowała zlecenie wykonania stalowej antresoli na którą została położona sklejka wewnątrz wysokiego pomieszczenia. Do konstrukcji zostały zamocowane stalowe schody umożliwiające wejście na górę. Do antresoli została zamontowana balustrada.  Całość została pokryta bezbarwnym lakierem co nadaje całości niepowtarzalnego wyglądu.

Poniżej znajduje się wizualizacja projektu wraz z rysunki technicznymi oraz zdjęcia wykonanej i zamontowanej konstrukcji.

Taras

Nasza firma realizowała zlecenie wykonania tarasu. Solidna konstrukcja oraz balustrada zostały ocynkowane i pomalowane proszkowo co zapewni zabezpieczenie antykorozyjne i wygląd na długie lata. Cały taras został wyłożony deską kompozytową ze strukturą drzewa.

Poniżej znajduje się wizualizacja projektu wraz z rysunkiem technicznym oraz zdjęcia wykonanej i zamontowanej konstrukcji.

Wiata rowerowa

Nasza firma realizowała zlecenie wykonania wiaty rowerowej wraz ze stojakami. Solidna konstrukcja oraz stojaki zostały ocynkowane i pomalowane proszkowo co zapewni zabezpieczenie antykorozyjne i wygląd na długie lata. Dach został pokryty blachą trapezową a kolor został dobrany tak, aby wiata „zlewała” się z istniejącym już budynkiem.

Poniżej znajduje się wizualizacja projektu oraz zdjęcia wykonanej i zamontowanej wiaty.

Seraphinite AcceleratorOptimized by Seraphinite Accelerator
Turns on site high speed to be attractive for people and search engines.